14
$2,250,000 Sale
Listed 23 hours ago
23004 DEWDNEY TRUNK ROAD
· 0
· 0.0
· 0
· -
Key Facts
Key facts for 23004 DEWDNEY TRUNK ROAD
Property Type
Lots/Land
Parking
Garage: No, 0 parking
MLS #
R3057434
Size
-
Basement
-
Listed on
-
Lot size
-
Tax
-
Days on Market
-
Year Built
-
Maintenance Fee
-
Description
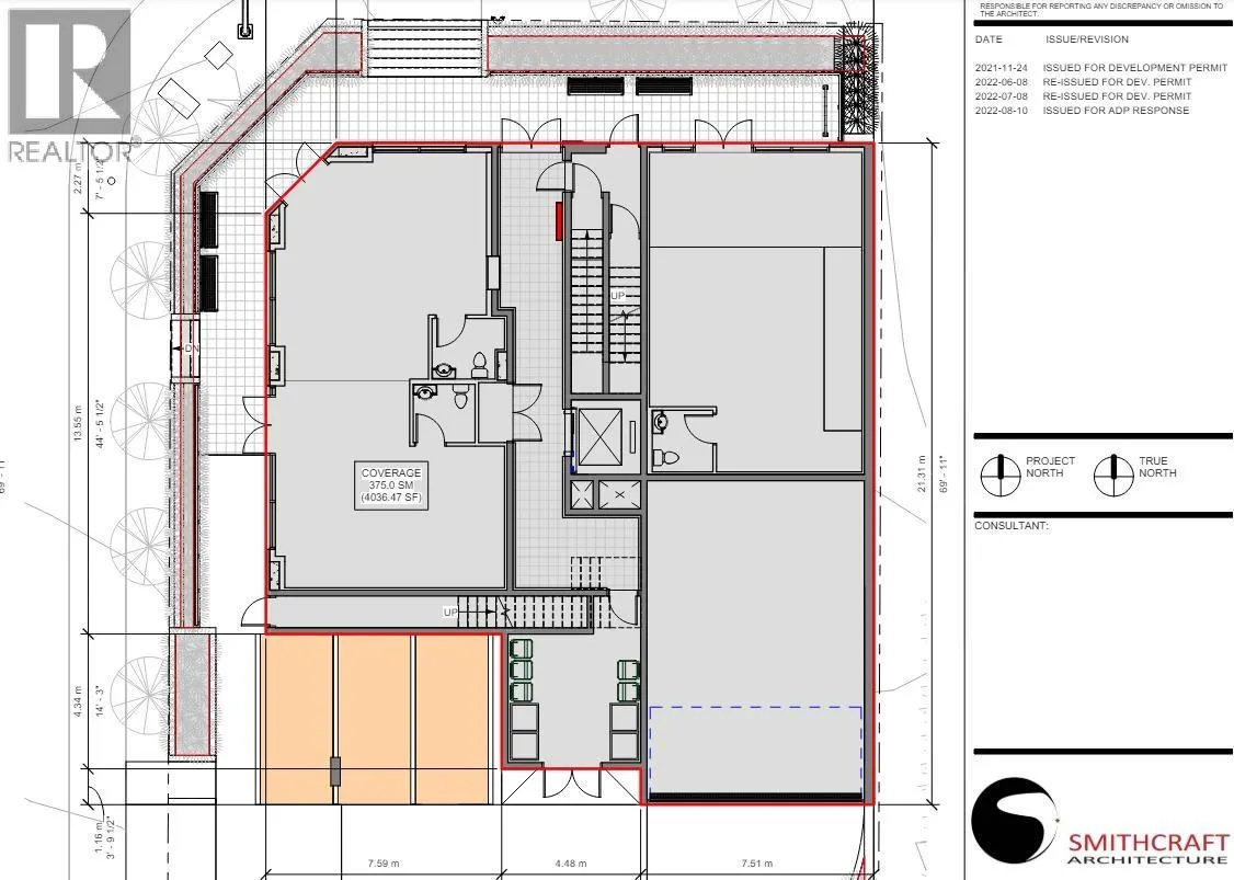
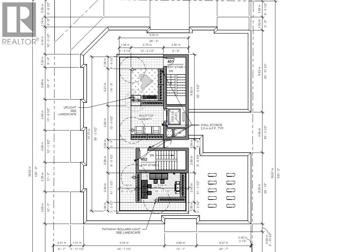
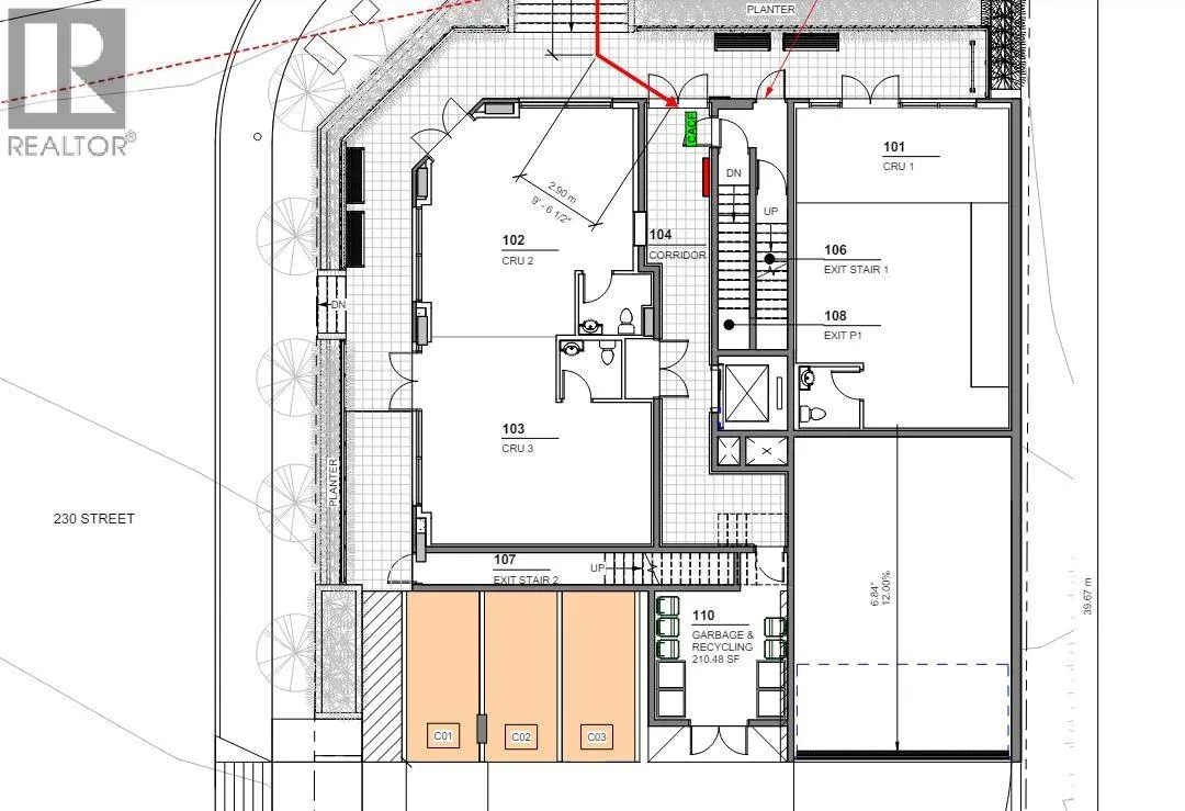
WHAT A LOCATION! 13 unit new building South East corner of Dewdney Trunk Road & 230th Street in Maple Ridge. 2 road frontages and the property slopes gently to the north. Looking at a commercial zone. Across the street from Tim Horton's and Maple Ridge Eye Care. The plans are with the City of Maple ...Ridge for building permit. The current plan is 3 commercial units on the main, 10 residential units on the 2nd and 3rd floors with 4 x 1 bedroom, 4 x 2 bedroom and 2 x 3 bedroom with 5 designated rental and 5 designated market housing. (id:10452)
Similar Properties (No results)
Listing courtesy of: RE/MAX LIFESTYLES REALTY
This REALTOR.ca listing content is owned and licensed by REALTOR® members of The Canadian Real Estate Association.